ОГЭ 2022. Вариант 30 Ященко 36 вариантов ФИПИ школе.
Решаем 30 вариант ОГЭ Ященко 2022 года сборника ФИПИ школе 36 вариантов. Полный разбор всего 30 варианта (всех заданий).
Больше разборов вы найдете на моем ютуб-канале! Не забудьте подписаться!
Задание 1-5
Квартиры
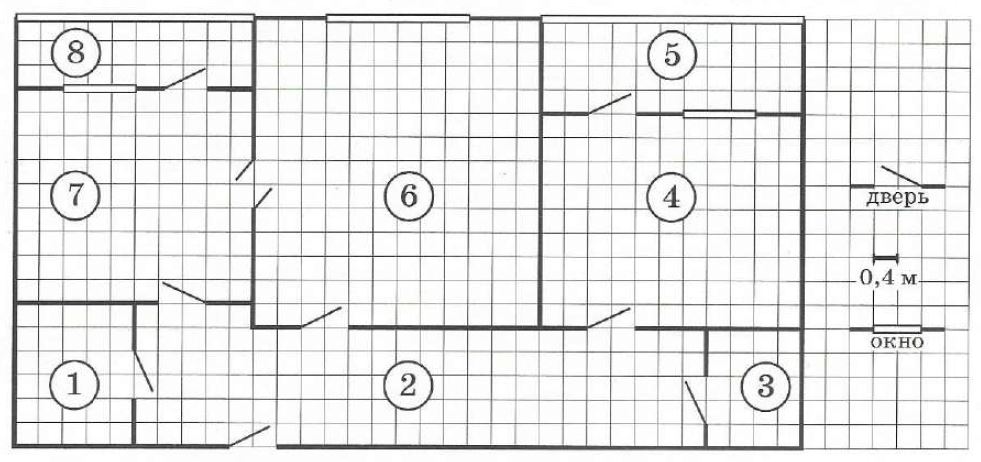
На рисунке изображён план двухкомнатной квартиры в многоэтажном жилом доме. В правой части рисунка даны обозначения двери и окна, а также указано, что длина стороны клетки на плане соответствует 0,4 м. Вход в квартиру находится в прихожей. Слева от входа в квартиру располагаются кухня и санузел, а также одна из застеклённых лоджий, в которую можно пройти из кухни. Также из кухни можно попасть в гостиную — самое большое по площади помещение. Наименьшую площадь в квартире имеет кладовая. В квартире есть ещё одна застеклённая лоджия, куда можно попасть, пройдя через спальню.
1. Для помещений, указанных в таблице, определите, какими цифрами они обозначены на плане. Заполните таблицу, в бланк перенесите последовательность пяти цифр.
| Помещения | кухня | спальня | санузел | кладовая | прихожая |
| Цифры |
2. Плитка для пола размером 20 х 20 см продаётся в упаковках по 6 штук. Сколько упаковок плитки необходимо купить, чтобы выложить пол в обеих лоджиях?
3. Найдите площадь гостиной. Ответ дайте в квадратных метрах.
4. На сколько процентов площадь лоджии, примыкающей к спальне, больше площади кладовой?
5. В квартире планируется заменить электрическую плиту. Характеристики электроплит, условия подключения и доставки приведены в таблице. Планируется купить электрическую плиту шириной 60 см с духовкой объёмом не менее 52 л.
| Модель | Объём духовки (л) | Максимальная темпера тура (°C) | Стоимость плиты (руб.) | Стоимость подключения (руб.) | Стоимость доставки (% от стоимости плиты) | Габариты (высота х ширина х глубина, см) |
| А | 50 | 280 | 8 890 | 1700 | бесплатно | 85 х 50 х 54 |
| Б | 50 | 300 | 9 790 | 750 | 10 | 85 х 50 х 54 |
| В | 50 | 250 | 11 690 | 700 | 10 | 85 х 60 х 60 |
| Г | 52 | 250 | 17 490 | 800 | 10 | 85 х 60 х 60 |
| Д | 70 | 275 | 17 990 | 1400 | бесплатно | 85 х 60 х 45 |
| Е | 58 | 250 | 18 890 | 1500 | бесплатно | 85 х 50 х 60 |
| Ж | 54 | 270 | 18 900 | 750 | 15 | 85 х 50 х 60 |
| 3 | 46 | 250 | 20 990 | 750 | 10 | 87 х 50 х 60 |
| И | 70 | 275 | 21 690 | 1500 | бесплатно | 85 х 50 х 60 |
| К | 67 | 250 | 22 990 | 1500 | бесплатно | 85 х 50 х 60 |
Сколько рублей будет стоить наиболее дешёвый подходящий вариант вместе с подключением и доставкой?
Больше разборов вы найдете на моем ютуб-канале! Не забудьте подписаться!
Задание 7
Какому из данных промежутков принадлежит число $$\frac{5}{11}$$?
1) $$[0,2; 0,3]$$
2) $$[0,3; 0,4]$$
3) $$[0,4; 0,5]$$
4) $$[0,5; 0,6]$$
Больше разборов вы найдете на моем ютуб-канале! Не забудьте подписаться!
Задание 8
Найдите значение выражения $$\frac{b^7 \cdot b^{16}}{b^{21}}$$ при $$b = 9$$.
Больше разборов вы найдете на моем ютуб-канале! Не забудьте подписаться!
Задание 9
Решите уравнение: $$\frac{1}{3}x^2 - 27 = 0$$. Если уравнение имеет более одного корня, в ответ запишите меньший из корней.
Больше разборов вы найдете на моем ютуб-канале! Не забудьте подписаться!
Больше разборов вы найдете на моем ютуб-канале! Не забудьте подписаться!
Задание 12
Площадь четырёхугольника можно вычислить по формуле $$S = \frac{1}{2} d_1 d_2 \sin \alpha$$, где $$d_1$$ и $$d_2$$ — длины диагоналей четырёхугольника, $$\alpha$$ — угол между диагоналями. Пользуясь этой формулой, найдите площадь $$S$$, если $$d_1 = 4$$, $$d_2 = 18$$, $$\sin \alpha = \frac{8}{9}$$.
Больше разборов вы найдете на моем ютуб-канале! Не забудьте подписаться!
Задание 13
Укажите неравенство, которое не имеет решений:
1) $$x^2 + 15 \ge 0$$
2) $$x^2 - 15 \le 0$$
3) $$x^2 - 15 \ge 0$$
4) $$x^2 + 15 \le 0$$
Больше разборов вы найдете на моем ютуб-канале! Не забудьте подписаться!
Задание 14
При проведении химического опыта реагент равномерно охлаждали на $$6,5^\circ\text{C}$$ в минуту. Найдите температуру реагента (в градусах Цельсия) спустя $$4$$ минуты после начала проведения опыта, если начальная температура составляла $$-4,9^\circ\text{C}$$.
Больше разборов вы найдете на моем ютуб-канале! Не забудьте подписаться!
Задание 15
В треугольнике $$ABC$$ $$AC = 55$$, $$BM$$ — медиана, $$BM = 36$$. Найдите $$AM$$.
Больше разборов вы найдете на моем ютуб-канале! Не забудьте подписаться!
Больше разборов вы найдете на моем ютуб-канале! Не забудьте подписаться!
Задание 17
Диагональ $$BD$$ параллелограмма $$ABCD$$ образует с его сторонами углы, равные $$65^\circ$$ и $$50^\circ$$. Найдите меньший угол параллелограмма. Ответ дайте в градусах.
Больше разборов вы найдете на моем ютуб-канале! Не забудьте подписаться!
| $$\angle B=65+50=115^{\circ}$$ $$\angle A=180^{\circ}-\angle B=180^{\circ}-115^{\circ}=65^{\circ}$$ |
Больше разборов вы найдете на моем ютуб-канале! Не забудьте подписаться!
Задание 19
Какое из следующих утверждений верно?
- Диагонали прямоугольной трапеции равны.
- Существует прямоугольник, диагонали которого взаимно перпендикулярны.
- В тупоугольном треугольнике все углы тупые.
В ответ запишите номер выбранного утверждения.
Больше разборов вы найдете на моем ютуб-канале! Не забудьте подписаться!
Больше разборов вы найдете на моем ютуб-канале! Не забудьте подписаться!
1) Числитель $$-12$$ — отрицательное и не равен нулю, значит дробь никогда не обращается в ноль. Чтобы дробь была отрицательной, знаменатель должен быть положительным: $$4 + 3x - x^2 > 0.$$
2) Решим неравенство: $$4 + 3x - x^2 > 0.$$ Перенесём всё в одну сторону: $$-x^2 + 3x + 4 > 0 \;\Longleftrightarrow\; x^2 - 3x - 4 < 0.$$ Учтём, что $$x^2 - 3x - 4 = (x-4)(x+1).$$ Нули: $$x_1 = -1;\quad x_2 = 4.$$ Отметим их на координатной прямой и расставим знаки, которые принимает выражение $$(x-4)(x+1)$$ на полученных промежутках.
Выражение отрицательное при: $$x \in (-1;\,4).$$
Задание 21
В сосуд, содержащий $$9$$ литров $$16$$ - процентного водного раствора вещества, добавили $$3$$ литра воды. Сколько процентов составляет концентрация получившегося раствора?
Больше разборов вы найдете на моем ютуб-канале! Не забудьте подписаться!
Задание 22
Постройте график функции $$y = |x^2 + x - 2|$$. Какое наибольшее число общих точек график данной функции может иметь с прямой, параллельной оси абсцисс?
Больше разборов вы найдете на моем ютуб-канале! Не забудьте подписаться!
Задание 23
Найдите боковую сторону $$AB$$ трапеции $$ABCD$$, если углы $$ABC$$ и $$BCD$$ равны соответственно $$30^{\circ}$$ и $$120^{\circ}$$, a $$CD=25$$.
Больше разборов вы найдете на моем ютуб-канале! Не забудьте подписаться!

$$D=180-C=180-120=60$$
Из CHB : $$CH=CD * \sin D = 25 \sin 60=25 * \frac{\sqrt{3}}{2}=\frac{25\sqrt{3}}{2}$$
$$AM=CH$$ ;
$$AB=\frac{AM}{\sin B}=\frac{\frac{25\sqrt{3}}{2}}{\frac{1}{2}}=25\sqrt{3}$$
Задание 24
Внутри параллелограмма $$ABCD$$ выбрали произвольную точку $$E$$. Докажите, что сумма площадей треугольников $$AEB$$ и $$CED$$ равна половине площади параллелограмма.
Проведём через точку $$E$$ прямую $$MN \parallel AB$$
Площадь $$\triangle ABE = \frac{1}{2}S_{ABNM}$$ (*)
(*) Докажем это утверждение. Пусть $$EH$$ - высота в треугольнике $$ABE$$. Тогда $$S_{ABE} = \frac{1}{2} \cdot AB \cdot EH$$. Но $$S_{ABNM} = AB \cdot EH$$. Тогда $$S_{ABE}=\frac{1}{2}S_{ABNM}$$.Площадь $$\triangle CED = \frac{1}{2}S_{CNMD}$$
Сумма площадей: $$S_{ABE} + S_{CED} = \frac{1}{2}(S_{ABNM} + S_{CNMD})$$
Но $$S_{ABNM} + S_{CNMD} = S_{ABCD}$$
Таким образом: $$S_{ABE} + S_{CED} = \frac{1}{2}S_{ABCD}$$
Что и требовалось доказать.
Задание 25
В треугольнике $$ABC$$ известны длины сторон $$AB=14$$, $$AC=98$$, точка $$O$$ - центр окружности, описанной около треугольника $$ABC$$. Прямая $$BD$$, перпендикулярная прямой $$AO$$, пересекает сторону $$AC$$ в точке $$D$$. Найдите $$CD$$.
Больше разборов вы найдете на моем ютуб-канале! Не забудьте подписаться!


